$3.7bn Erskine Park Data Centre Hits Public Exhibition

A State Significant Development application for a large-scale data centre at 78 Lockwood Road, Erskine Park is now on public exhibition. The proposal, lodged by STACK Infrastructure Australia, seeks approval for a three-storey facility with significant operational capacity.

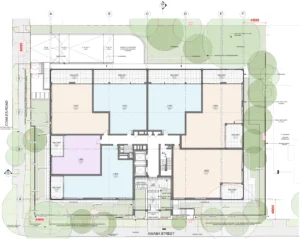
The project involves two buildings with a combined gross floor area of approximately 56,506 sqm and a maximum height of 26.5 metres. Key features include 78 car parking spaces, a generator gantry with 188 backup generators, an on-site substation, and landscaping across the 77,243 sqm site.

As a State Significant Development, the application is being assessed under the NSW planning framework due to its scale and economic impact. The public exhibition period runs from 20 April 2026 to 4 May 2026, allowing for community submissions and feedback.

For more information, search the application number (SSD-82211208) on the NSW Department of Planning, Housing and Infrastructure’s website.

Project Snapshot
Project Overview
Application NumberSSD-82211208
Project TitleStack Syd01 Data Centre Erskine Park
Project StatusOn exhibition
Project TypeData Storage
Address78 Lockwood Road, Erskine Park
LGAPenrith, Blacktown
DeveloperSTACK Infrastructure Australia (78 Lockwood Road) Pty Ltd ATF the STACK Infrastructure (78 Lockwood Road) Unit Trust
Project Metrics
Operational Capacity450 MW
Site Area77,243 sqm (7.72 ha)
GFA56,506 sqm
Building Height26.5m
Storeys3
Backup Generators188 backup generators
SubstationIncluded
Water StorageIncluded
Parking78 car
Tree Canopy10.59%
Landscaped Area56.07%
Jobs1482 construction / 200 operational
Capital Investment$3.70 billion
Planning Metrics
ExistingProposed
ZoningIN1 General Industrial, C2 Environmental Conservation, SP2 Infrastructure
FSR0.720.73
HOBNot stated26.5m
Project Team
DeveloperSTACK Infrastructure Australia (78 Lockwood Road) Pty Ltd ATF the STACK Infrastructure (78 Lockwood Road) Unit Trust
PlanningUrbis Ltd
ArchitectGenton
View Full Consultant Team
DeveloperSTACK Infrastructure Australia Pty Ltd
Cost consultantLinesight
Access/BCA consultantBm+g
Access/BCA consultantSTACC
Landscape architectHabit8
Air Quality consultantNorthstar
Acoustic consultantAcoustic Logic
ESD consultantLCI Consultants
Geotechnical consultantDouglas Partners
Traffic engineerPositive Traffic
Waste consultantNuloop
Bushfire consultantBlackash
Biodiversity consultantécologique
Civil engineerACOR Consultants
Infrastructure providerTransGrid
ArboristCPS

Latest

Subscribe to Urban Digest Weekly

Urban Digest Weekly delivers a clean, curated snapshot of major development activity across NSW — straight to your inbox every Monday.

Read weekly by professionals across planning, development, consulting, and local government.

Advertisement

Biggest Stories

Leave a Reply

Your email address will not be published. Required fields are marked *

Urban Digest

NSW’s Source for Urban Development & Design News

Subscribe to Urban Digest Weekly

Urban Digest Weekly delivers a clean, curated snapshot of major development activity across NSW — straight to your inbox every Monday.

Read weekly by professionals across planning, development, consulting, and local government.

Copyright Urban Digest PTY LTD 2024 | ACN: 682 195 937